|
Assignment: The DiveCon candidates have to map 3 landmarks from Fantasy
Lake.
DiveCon candidates' team: Tall Bob, Bob K, Rob, Steve, Joe, and Vlad.
Landmarks chosen:
- Deep training platform straight in front of the beach dock
- Shallow glass bottom boat
- Rice bowls and cutup grate
Introduction
Fantasy Lake is a rock quarry situated in Rolesville and used now for
training dives. Fantasy Lake ranks as one of the largest quarries in the
Southeast (55 acres). Formerly known as Rolesville Quarry, the site was
mined beginning in the last century and its granite used in construction
projects as far away as the Chesapeake Bay Tunnel. Sherrill bought the
quarry in 1980 to convert it to an underwater park.
Most diving takes place in the 30- to 40-foot depth range, although three
holes - ranging from 60 to 90 feet in depth - also beckon. Divers have
measured a maximum of 112 feet.
Some of the landmarks that can be seen in Fantasy Lake are training platforms,
rock crusher, public transportation bus, glass bottom boat, rice bowls,
tricycle, beetle bug.
Deep training platform
The deep training platform is situated right in front of the beach dock
at a depth of about 37'. The platform is made of 23, 2 x 6 planks and
seats on concrete blocks at 1'-5" off the bottom. The size of the
platform is 12' x 15'. The planks are each 3' long and 5 sections are
put together to get the length of 15'. There are 2 buoy lines that on
the surface hold 2 buoy marked with two red lines. If you look to the
platform from the dock, on its right side it has 2 stairs that end on
the bottom of the lake. There are 2 lines that go to other landmarks,
one is going to the deep glass bottom boat and the other one is going
to the glass bottom boat. The line that is going to the glass bottom boat
is marked with a yellow tag. The distance between the platform and the
glass bottom boat is 157'. The heading of the platform is 330° (direction
of the planks toward the steps). The heading to get from the beach dock
to the deep platform is 290°. Close to the platform on the left side
it has 3 cement blocks (like the one it sits on).
See the map drawing for more details.
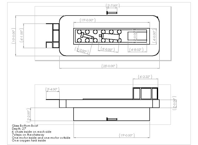
Glass bottom boat
The glass bottom boat is a boat used to tour lakes with shipwrecks and
show the non-divers the beauty of the sunken treasures. The boat is 25'
long by 10' wide and is 8' tall. The glass bottom of course has been removed
but you can still see inside the chairs used o sit down close to the glass.
It has two motors, a big one inside the boat (3'-2") and a small
one outside the boat (2'-7"). You can also see inside an old oxygen
tank. The boat has in front a rail and at the back a holder for the motor.
There is a stairway that gets from the top of the boat to the glass part
of the boat. The stairway has 7 steps and a rail. On the left side of
the boat you can see the top cover of one of the motors. There is a buoy
attached to the boat close to the back on the left side. There are also
two lined going from the glass bottom boat to the deep training platform
and to the rice bowls. The headings for those lines are 30º for the
rice bowls (164' from boat to rice bowls) and 250º for the deep training
platform (157' from boat to the training platform). The boat sits in 27'
of water. See the map drawing for more details.
Rice bowls
The rice bowls are two bowl-like pieces of rock crushing equipment, originally
they were rotating on the same axis and the rock was crushed by this rotation.
Now they are setup to look like big Chinese rice bowls with chopsticks.
The bowls are 6' in diameter and 2' tall. They are 1" thick. The
chopsticks are hollow metal bars 2" in diameter. The rice bowl without
the chopsticks sits in 26' of water and the rice bowl with chopsticks
sits in 28' of water. The rice bowls are 2'-9" apart (between the
outside of them, the closest points).
Very close to the rice bowls is a metal grate with one corner cut off.
The grate is 4'-7" x 5'-1" and they are formed of 8 x 6 squares.
One of the corners has been cut off. See the map drawing for details.
Deep training platform Solid model view.

Cement bloc Solid model view (the platform sits on four of those to
be off the bottom)

Deep training platform Mechanical drawing view.

Glass bottom boat Solid model view

Glass bottom boat Mechanical drawing view

Oxygen tank Solid model view (found inside of the glass bottom boat)

Oxygen tank Mechanical drawing view

Rice bowls Solid model view

Rice bowls Mechanical drawing view

Metal grate Solid model view

Metal grate Mechanical drawing view

Complete Map with all the heading and distances between the mapped objects

(view image for bigger picture)
|